POSCO

実績事例
(じっせきじれい)

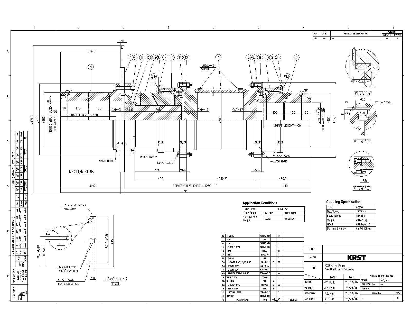
中国・張家港 Gear Coupling
(CC630)

中国・張家港POSCOで使用されているDisk Brake Couplingは、1000RPM以上で駆動する動力伝達装置です。高速回転に伴い、特にブレーキホイールが装着されているディスク部分で大きな振動が発生し、この振動により重大な事故が引き起こされるリスクが存在します。その結果、通常の1000RPMでの運転ができず、低速運転を余儀なくされ、効率の低下を招いていました。

これらの問題を解消するため、振動を抑制する固定リングを設置し、ギア部分の設計を再構築することで、高速運転時でも効率を維持できるDisk Gear Couplingを開発しました。

適用条件

  • Size D1250x4372
  • Type Disk Coupling
  • Motor (Kw) 6000
  • Rpm 1500