Zhangjiagang
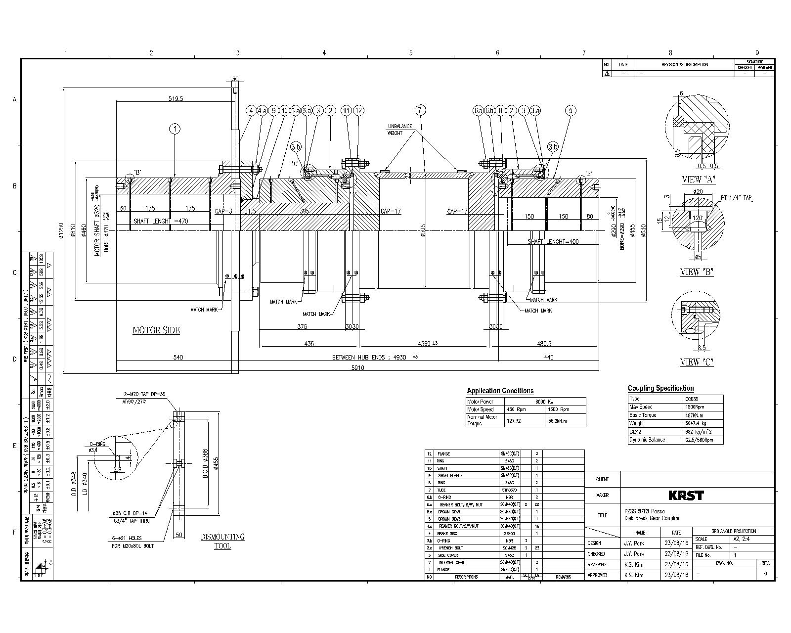
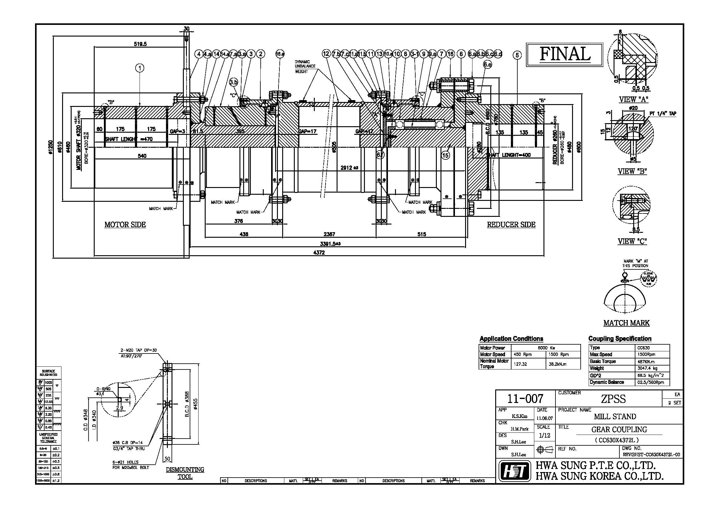
Gear Coupling (CC630)
The Disk Brake Coupling utilized at Zhangjiagang POSCO in China is a high-speed power transmission device designed to operate at speeds exceeding 1000 RPM. However, the high-speed rotation led to significant vibrations, particularly in the disk section where the brake wheel is mounted, posing a substantial risk of severe accidents. Consequently, the coupling was unable to operate at its standard speed of 1000 RPM and was limited to low-speed operation, resulting in decreased efficiency.
To mitigate these issues, a fixing ring was introduced to suppress vibrations, and the gear design was re-engineered to develop a Disk Gear Coupling capable of maintaining efficiency under high-speed operating conditions.
Application
Condition
- Size D1250x4372
- Type Disk Coupling
- Motor (Kw) 6000
- Rpm 1500